Wasser & Abwasser

Einzelplanungen

Wasser und Abwasser planen? Wir erledigen das für Sie!
Stellen Sie Ihre individuelle Planung selbst zusammen. Von der Abwasserplanung bis hin zu detallierten Plänen. Bestimmen Sie, was wir für Sie planen dürfen! Jetzt bestellen.

Die Planungen bieten wir für Wohn- und Bürogebäude an.

Sie wählen unter folgenden Schritten:

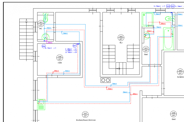
  1. Planung Trinkwasser-Rohrnetz
  2. Planung Entwässerung
  3. Durchbruchsplanung
  4. Materialauszug
  5. Grundrisse mit eingezeichneter Trinkwasser und Entwässerungsplanung

Direkt bestellen.

Einklappbarer Inhalt

Wie läuft die Bestellung ab?

  1. Wählen Sie die Gebäudeart und Größe.
  2. Buchen Sie ihre persönlichen Zusatzleistungen dazu.
  3. Legen Sie das Planungspaket in den Warenkorb.
  4. Sie erhalten im Anschluss die entsprechenden Erfassungsformulare.
  5. Die ausgefüllten Formulare senden Sie an uns zurück.
  6. Nach Erhalt der vollständigen Daten beginnen wir mit der Planung.
  7. Das war's schon!

Eine komplette Sanitärplanung besteht aus:

  1. Planung Trinkwasser-Rohrnetz
  2. Planung Entwässerung
  3. Durchbruchsplanung
  4. Materialauszug
  5. Grundrisse mit eingezeichneter Trinkwasser und Entwässerungsplanung

Komplettplanung gewünscht?

Hier erhalten Sie alle Planungsschritte im Komplettpaket:

Wasser & Abwasser

Die sorgfältige Planung einer Trinkwasseranlage ist aus zwei wesentlichen Aspekten sehr wichtig. Zum einen verpflichtet die Trinkwasser-Verordnung verpflichtet jeden Installateur, Architekten und Hausbesitzer zu einer normgerechten Installation. Zum anderen kann eine fehlerhafte Planung zu einer Ausbreitung von Legionellen führen.

Trinkwasserverordnung

Für die Installation von Trinkwasser-Anlagen, gelten umfangreiche Normen und Regeln. Diese sind beispielsweise die DIN EN 806-2, mit weiterführenden nationalen Festlegungen in DIN 1988-200. Außerdem gilt die DIN EN 806-4 für Installationen.